21016 Mendenhall Court, Topanga, CA 90290
- 5 beds |
- 5 baths |
- 4,150 sqft
Single-Family Home
Built in 1993
0.35acre lot
3 car garage
$481/sqft
Listed 2 months ago
Property Description
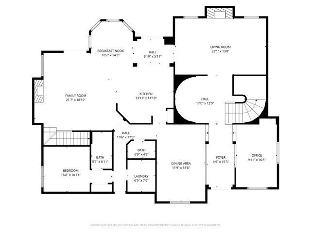
Over $100,000 Price Adjustment! | Fully Renovated and remodeled in 2025 | Summit Pointe Estates | 5 Bed + Office | 4.5 Bath | 4,150 Sq Ft | Lot 15,170 Sq. Ft.| Located at the top of Topanga Canyon in the exclusive guard-gated Summit Pointe Estates, this beautifully reimagined home offers 5 bedrooms + office, 4.5 bathrooms, and 4,150 sq ft of luxurious living Features include soaring ceilings, wide-plank wood floors, a chef’s kitchen with Quartz waterfall countertops, stainless appliances, pantry, open to a spacious family room with fireplace and breakfast nook & breakfast bar. The main level offers a guest/maid’s suite, office or game room, powder room, and laundry with sink. Upstairs, a loft-style lounge connects to four spacious bedrooms—one with an en-suite bath, two bedrooms sharing a Jack & Jill bath, and a spectacular primary suite featuring vaulted ceilings, a skylight, dual walk-in closets, and a spa-like bathroom, double sinks with breathtaking canyon views. Outdoors, the expansive, private backyard offers ample space to add an infinity pool, spa, fire pit, and luxurious outdoor living areas—all set against serene canyon views that create the ultimate private oasis. A rare, oversized side yard provides additional room for a pickleball court or other amenities. The wide front lot also allows for the potential addition of a second driveway and 3 car garage. Truly an entertainer’s dream or a tranquil retreat in one of Topanga's most sought-after communities—adjacent to Woodland Hills and ideally located for easy access to both Malibu beaches and the San Fernando Valley. Close proximity to Viewpoint School adds to its appeal. Upgrades include:HVAC, windows, electrical, plumbing, recessed lights, new doors, hardware, paint, and more. Don't miss this beautifully exquisite remodeled Estate!
- Listing Status:
- Pending
- Date Added:
- October 6, 2025 at 05:00AM
- Listing Office:
- Coldwell Banker Realty : 818-995-2424
- Listing Agent:
- Bassem Abdul-Fattah : 818-995-2424
- MLS ID:
- SR25231439

- General: Breakfast BarBreakfast AreaCeiling Fan(s)Cathedral Ceiling(s)Separate/Formal Dining RoomHigh CeilingsMultiple StaircasesPantryRecessed LightingBedroom on Main LevelEntrance FoyerJack and Jill BathLoftMain Level PrimaryPrimary SuiteWalk-In PantryWalk-In Closet(s)
- Appliances: 6 Burner StoveDishwasherENERGY STAR Qualified Water HeaterFree-Standing RangeDisposalGas RangeMicrowaveRefrigeratorRange HoodWater To RefrigeratorWater HeaterDryerWasher
- Laundry: Washer HookupInsideLaundry Room
- Flooring: See RemarksStoneWood
- A/C: Central AirDual
- Heating: CentralForced AirSee Remarks
- Fireplace: Family RoomLiving RoomPrimary BedroomFireplace
- Eco/Green Feature: Water Heater
- General: LightingRain Gutters
- Style: Contemporary
- Other Structures: ConcretePatio
- Pool: None
- Parking: ConcreteDoor-MultiDirect AccessDrivewayGarageSee RemarksSide By SideParking spaces: 6
- Roofing: Tile
- Windows: Double Pane Windows
- General: Stucco2Slab
- HOA Amenities: Controlled AccessGuard585.0Monthly
- Originating MLS: CRMLS_CRM
- School District: Los Angeles Unified
- County: Los Angeles
- Zoning: LCR1L24434039032
- View: HillsMountain(s)NeighborhoodTrees/WoodsView
- Fencing: BlockGood Condition
- Utilities: Electricity ConnectedNatural Gas ConnectedPhone ConnectedSewer AvailableSewer ConnectedWater Connected
- Water: Public
- Sewer: Public Sewer
- Source: CRMLS_CRM
- Exclusions: Kitchen appliancesRefrigeratorwasher & Dryer.
This listing courtesy of Bassem Abdul-Fattah, Coldwell Banker Realty
Monthly Payment
- Principal & Interest $
- Property Taxes $
- Home Insurance $
- VA Funding Fee $
Location
Schools Nearby
Woodland Hills Elementary Charter
22201 San Miguel St, Woodland Hills, CA, 91364
Grades KG-5
2.11 miles away
Woodland Hills Academy
20800 Burbank Blvd, Woodland Hills, CA, 91367
Grades 6-8
2.62 miles away
Taft Charter High School
5461 Winnetka Ave, Woodland Hills, CA, 91364
Grades 9-12
2.65 miles away






