604 Saint Claude Place, Huntsville, AL 35824
- 3 beds |
- 2 baths |
- 1,457 sqft
Single-Family Home
Built in ——
6,970sqft lot
—— car garage
$226/sqft
Listed 2 days ago
Property Description
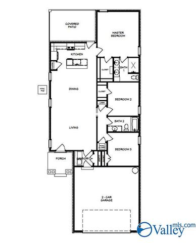
Under Construction-At Town Madison, we have mastered the art of crafting homes that resonate with your unique lifestyle. The Bluefield, 3 bedroom 2 bath, has a brick exterior and large covered rear patio. The large open living space leads to a spacious dining room. On to the kitchen with shaker cabinets, large center island with beautiful pendant lighting, trash pull out, culinary faucet, soft close doors and drawers. Master has a 5' tile shower, double vanities, framed mirrors, ceiling fan and walk-in closet. Gas Tankless Water Heater. Beautiful Community Clubhouse, Pool & Fitness Center. Ready to explore your options? Dive in and discover how we can turn your dream into reality!
- Listing Status:
- Active
- Date Added:
- November 23, 2025 at 06:00AM
- Listing Office:
- Breland Homes LLC : 256-713-3636
- MLS ID:
- 21904523
- Style: CraftsmanRanch/1 Story
- Parking: Garage-Two CarGarage-AttachedGarage Faces Front
- General: BrickOneSlab
- HOA Amenities: ClubhouseCommon Grounds650.0Annually
- Originating MLS: Valley MLS
- County: MADISON
- Zoning: 1608280000001.102
- Sewer: Public Sewer
- Source: Valley MLS
This listing courtesy of Breland Homes LLC
Monthly Payment
- Principal & Interest $
- Property Taxes $
- Home Insurance $
- VA Funding Fee $
Location
Schools Nearby
Madison Elementary School
17 College St, Madison, AL, 35758
Grades KG-5
2.06 miles away
Journey Middle School
, Madison, AL, 35758
Grades 6-8
1.88 miles away
Bob Jones High School
650 Hughes Rd, Madison, AL, 35758
Grades 9-12
3.41 miles away






